案例中心
当前位置: 首页 > 案例中心 > 生态加筋土边坡
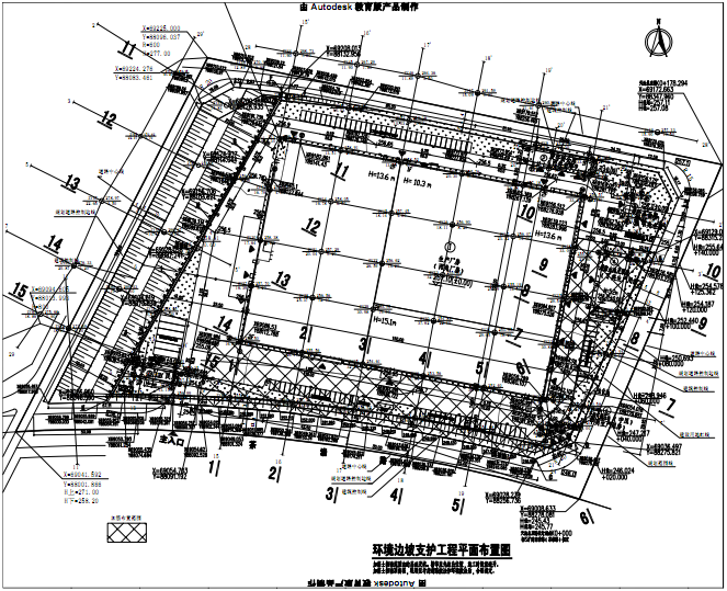
重天参天科瑞制药眼用制剂新建项目环境边坡支护工程
施工时间:2017年9月 - 2017年12月
采用产品:CATTX80-30、生态袋
墙面型式:柔性生 态坡面
解决工程问题:节约占地, 软土回填,生态恢复,节省造价

工程背景

重庆参天科瑞制药有限公司拟在重庆市巴南区木洞麻柳开发区修建眼用制剂新建项目,本工程用地面积约37579m²,建筑面积约为26436m²,主要拟建物包括生产厂房、废弃物仓库(设计仓库内无行车)、危险品仓库(设计仓库内无行车)、消防水池及泵房、门卫、天然气调压站等主要构筑物。根据设计方案,场地按设计高程、指定的坡脚线整平后将在场地西侧,北、南、东侧四周形成环境边坡,西侧和北侧为挖方边坡,南侧和东侧为填方边坡。拟建场地原始地形属丘陵地貌,现已经初步整平,场地总体地形平坦、开阔。

场地东侧和南侧均将形成填方边坡,且原地面及岩土界面埋深较深,东侧南段边坡长141.90m按设计高程整平后将形成边坡高0~10.00m,总体坡向113°,为填土边坡。原始地面、岩土界面倾向与坡向一致,坡角4~8°,岩土界面倾角3~10°;南侧东段按设计高程该段边坡长211m,边坡高0~8.82m,总体坡向184°,为填土边坡。原始地面、岩土界面倾向与坡向一致,坡角2~6°,岩土界面倾角4~7°,原始地面、岩土界面位于坡底以下一定深度,外侧无临空,坡顶为拟建厂内道路,场地回填后不会沿原始地面或岩土界面滑动,但填土层自身稳定性差,易沿土体内部产生滑动。

边坡外侧均为已建市政道路,无放坡及开挖条件,作为永久性边坡,必须采取支护措施,设计采用加筋土边坡进行支护。

加筋土边坡工程设计简介

因下方回填土层较深(最深处达20m),基底较为软弱,设计底部采用0.8m加筋垫层换填,设置两层CATTX50-50型整体钢塑土工格栅,上部为2-10m采用土工格栅包裹式加筋土陡坡形式支护,高度超过6米时中部留宽度2米台阶。坡顶设置截水沟、马道、坡脚设置排水沟,排水系统应就近接入市政雨水系统。最高剖面从下至上每阶加筋长度分别为20米、12米、10米和8米,加筋材料竖向间距0.4米。加筋区结构回填土要求综合内摩擦角不小于35度,块粒径不大于15cm,压实度不小于93%。经设计计算,土工格栅包裹式加筋土陡坡的整体稳定安全系数分为和1.37,满足建筑一级边坡安全系数不小于1.35的要求。加筋土陡坡采用整体钢塑土工格栅CATTX60-30型,坡面坡率为1:0.5。加筋坡面从外至内由两部分组成:(1)生态袋袋装种植土绿化;(2)300mm厚塑料编织袋袋装碎石层反滤。整体钢塑土工格栅在坡面处对种植土及袋装碎石反滤层进行反包。边坡施工中在墙面反包袋装体内设置草籽等绿化材料,后期对坡面浇水养护以便生态恢复。

加筋土边坡服役效果评价

该边坡于2017年9月开始实施,2018年1月施工竣工。在施工过程中对每层填土均依据相关标准对填土的压实度进行检测,以确保工程质量。从竣工图片可见,这种土工格栅包裹式加筋土陡坡结构坡面平整,易于控制;竣工后,稍加养护,坡面绿化即可形成,实现了市政道路周边环境的生态恢复。

永固为此项目提供加筋土设计方案、加筋材料及施工现场技术服务。

全国服务热线

023-63600188

Copyright &copy; 重庆永固建筑科技发展有限公司 ALL Rights Reserved.  <a href="https://beian.miit.gov.cn/#/Integrated/recordQuery"><img src="http://www.cqyongu.cn/web/image/gongxunbu.png" style="width: 14px;height: 15px"/> 渝ICP备20009422号-1</a>