案例中心
当前位置: 首页 > 案例中心 > 生态加筋土边坡
重庆永翔现代物流产业园项目环境边坡支 护扛程
施工时间:2018年11月 - 2019年9月
采用产品: 整体钢塑土工格栅CATTX80-30型
墙面型式:柔性生 态坡面
解决工程问题:解决工程问题:建设用地最大化, 软土回填,生态恢复,节省造价

项目简介

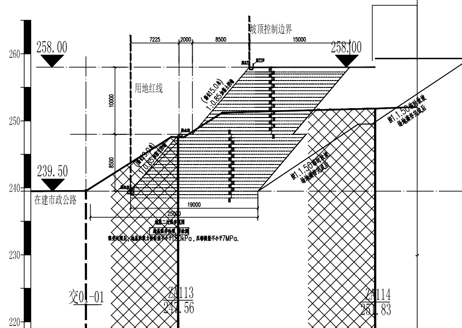
      该项目位于重庆市南岸区茶园组团,共分三期建设,一期场坪设计高程280,二期场坪设计高程258,三期场坪设计高程264,三块场地中拟建各建筑物均建在同一高程平台,平台与东侧市政道路基本持平,在南、北、西侧高于在建市政道路,存在边坡。北侧边坡高度0~21m,南侧边坡高度0~18m,西侧边坡高度18~21m,西侧边坡坡脚有新建市政挡墙,挡墙地面以上可见高度6~7m。边坡以土质边坡为主,局部少量岩质边坡。

待解决工程问题

       三块拟建场地周边均为已建和在建的市政道路,其中东侧市政道路已建成,红线紧靠人行道,场地北侧、南侧和西侧紧临市政道路,场地地面标高较三侧道路标高高,最大高差21m,最大水平距离20米,自然放坡距离不足,钻探揭露为人工回填土质边坡,边坡坡体现状以人工填土为主。填土层自身稳定性较差,易沿土体内部产生滑动,边坡稳定性由土体自身强度控制,作为永久性边坡,必须采取支护措施。

边坡处理方案

      设计采用土工格栅包裹式加筋土陡坡形式,坡面坡率1:0.85-1:1.00。因基底较为软弱,场地内及边坡底部设计采用强夯补强,强夯处理后,地基承载力特征值不小于150kPa,压缩模量不小于7MPa,强夯回填预留加筋边坡回填位置进行加筋边坡施工。加筋土陡坡高2-20米,加筋土边坡分两阶,中部留2米台阶,台阶水平,底部设置现浇混凝土反坎。加筋坡面从外至内由两部分组成:1、生态袋袋装种植土绿化,2、300厚塑料编织袋袋装碎石层反滤。整体钢塑土工格栅在坡面处对种植土及袋装碎石反滤层进行反包。边坡施工中在墙面反包袋装体内设置草籽等绿化材料,后期对坡面浇水养护以便生态恢复。

    永固为此项目提供加筋材料及现场技术指导服务。

全国服务热线

023-63600188

Copyright &copy; 重庆永固建筑科技发展有限公司 ALL Rights Reserved.  <a href="https://beian.miit.gov.cn/#/Integrated/recordQuery"><img src="http://www.cqyongu.cn/web/image/gongxunbu.png" style="width: 14px;height: 15px"/> 渝ICP备20009422号-1</a>